建案圖文




建案新訊
日升禾居是禾日建設最新溪湖建案,建案規劃華廈,歡迎蒞臨鑑賞!
建案詳情
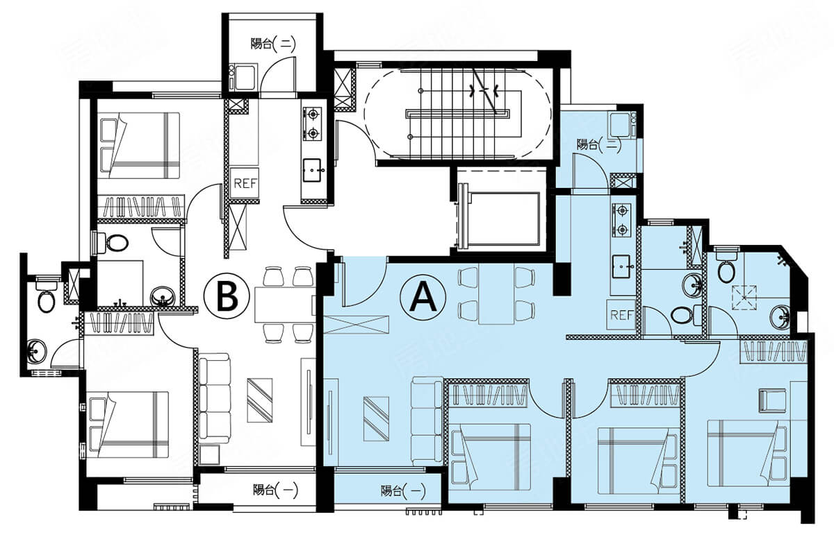
建案規劃華廈
房間規劃2~3房
建坪 住宅 25.51~32.26坪
總戶數 住宅 8戶
樓層規劃地上5層
基地面積 約85坪
坐向座東南朝西北
基地位址 未提供
企劃銷售 禾日建設
建築設計 劉晉綱建築師
營造公司 日一營造
停車方式 一樓停車、平面式、預留充電設備
車位價格 平面式 110萬起/每個車位
珍稀八戶
離塵不離城
掌握雙節奏生活
周邊配套依基地位址周邊10公里範圍內
學區/學校 湖北國小、溪湖國中、溪湖高中
公共建設 鎮立圖書館、大突運動公園、中央公園
超商/賣場 全聯福利中心、眾喜生鮮超市、俗俗賣綜合黃昏市場
熱門商圈 西環商圈
醫療機構 道安醫院
政府機構 鎮公所、衛生所、戶政事務所